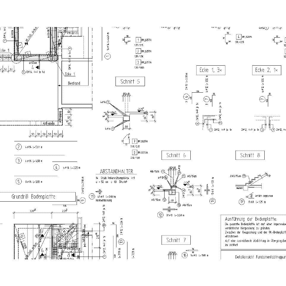
Das CAD-Programm für alle Bauzeichner und Konstrukteure im konstruktiven Ingenieurbau!
Schalpläne , Bewehrungspläne und Positionspläne können mit AICAD S+B erstellt werden. Das Zeichnen von Schalplänen erfolgt sogar teils 3-Dimensional, so dass auch Schnitte und Wandabwicklungen für die Bewehrungsweiterbearbeitung erstellt werden können.
Baugerechte Vermassung
Türen, Fenster, Aussparungen, Wandschlitze
Schnitte, Details
Stahlträger
Hilfskonstruktionen
baugerechte Schraffuren
Rundstahl- und Mattenverlegung nach DIN 1356
- und vieles mehr sind Standards von AICAD Schalplan und Bewehrungsplan.
Automatisch mitgeführte Stücklisten und Biegelisten der Rundstahlbewehrung nehmen dem Zeichner zeitraubende manuelle Ermittlungen ab. Das Erstellen von Positionsplänen erfolgt in kürzester Zeit.

